Romanellaz
Dans notre centre historique, une boite à chaussure ?
Comment est-ce possible ?
La pétition à imprimer
Lien vers la pétition Electronique
Sauvegardons Crissier au Conseil
Nos ACTIONS sont les meilleures preuves de notre ENGAGEMENT !
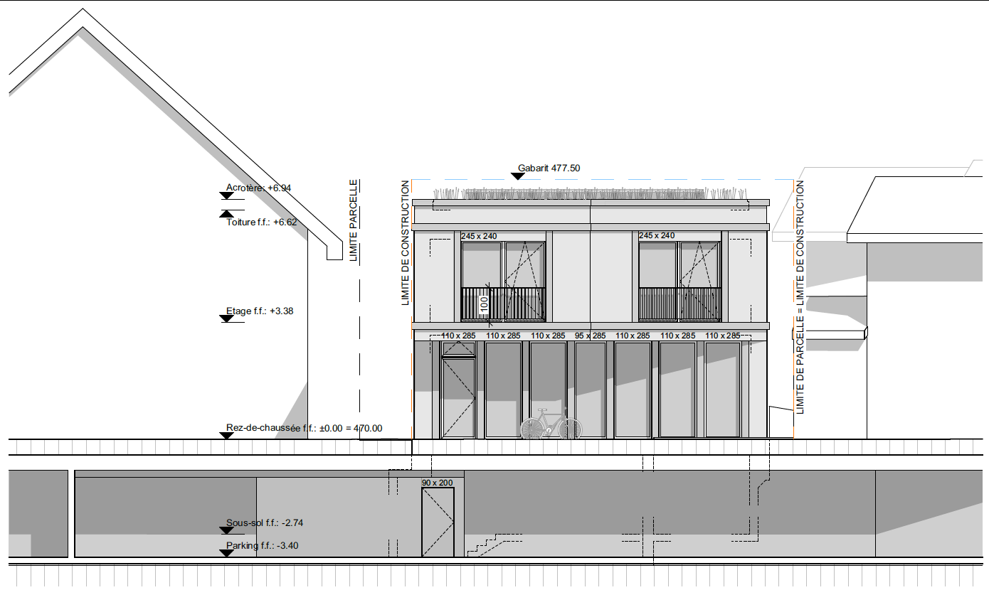
Encore moins de verdure et toujours plus de « minéralité » à Crissier.
Intégration architecturale douteuse, cantine scolaire oubliée, investissement communal dans l’immobilier sans doute pas nécessaire, et réduction des espaces vert.
Romanellaz pourquoi donc être contre … ?
Mauvaise intégration architecturale …
Le réglement communal prévoit » l’aire de construction B, la plus grande partie des toitures est à pans, de pentes comprises entre 60 et 90% »
Espaces Vert
Préserver les espaces vert et profiter de la proximité du vieux village pour aménager un espace arborisé et convivial qui pourrait être mis à la disposition de tous les habitants du village !
Contraire aux principes même du village !
Tendant à ce que la richesse de l’environnement villageois passe par une bonne qualité des espaces publics.
Romanellaz et son histoire
2016
06
Préavis + Règlement du PPA
Plan Partiel d’Affectation CB 3.8 adopté par le Conseil Communal en 2016
2016
06
Rapport de la Commission au Conseil
Rapport de la Commission au Conseil concernant le PPA – Plan Partiel d’Affectation CB 3.8
2020
4 mai
Préavis + demande de crédit
Préavis + demande de crédit de 2,4 Mio CHF pour le nouv. bâtiment sur parcelle 880 pour la cantine scolaire + 2 logements adopté par le Conseil le 4 mai 2020
2020
4 mai
Rapport de la Commission au Conseil
Rapport de la Commission au Conseil concernant le Preavis 61 et le crédit de 14,5 Mio
2020
4 mai
PV de la séance du Conseil du 4 mai 2020
PV de la séance du Conseil du 4 mai 2020 avec acceptation du Preavis 61 et du credit de 2,4 Mio CHF pour la construction du nouv. bâtiment communal sur la parcelle 880
2020
4 septembre
Oppositions du 4 sept. 2020 des habitants-riverains de la Romanellaz
Oppositions du 4 sept. 2020 des habitants-riverains de la Romanellaz à la construction du nouv. bâtiment communal sur la parcelle 880, qui demandent « à ce que la Commune renonce à bâtir cette parcelle 880 et de profiter de la proximité du vieux village pour aménager un espace arborisé et convivial qui pourrait être mis à la disposition de tous les habitants du village ».
3
Mars
Pétition Sauvegardons Crissier
Signez notre pétition pour informer le Conseil.
10
Mars
350 Signatures en 2 semaines
La démocratie reprend sa place à Crissier, vous y croyez MERCI !
